Демонстрационный сайт » Интерьер » Угловая каркасная баня

Угловая каркасная баня

0 голосов
0
0


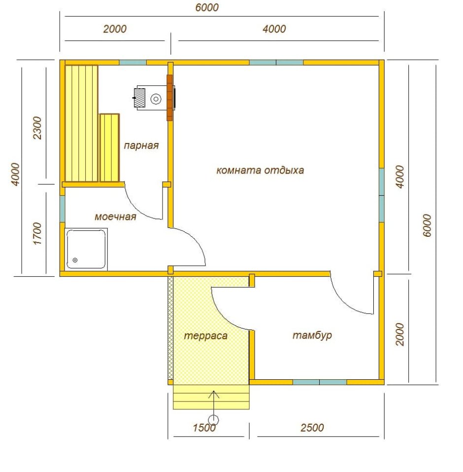
Угловая каркасная баня - это идеальное решение для тех, кто хочет создать уютный уголок отдыха на своем участке. Этот дизайн предлагает функциональность и стиль в одном.

Каркасная конструкция обеспечивает прочность и надежность сооружения, позволяя использовать баню круглый год. Угловая форма придает зданию особую элегантность и позволяет максимально эффективно использовать площадь участка.

Благодаря своей открытой планировке, угловая каркасная баня создает ощущение простора и свободы. Вы можете разделить ее на несколько функциональных зон, таких как парилка, комната отдыха и пространство для проведения вечеринок с друзьями.

Оформление интерьера бани можно выбрать по своему вкусу. Можно использовать натуральные материалы, такие как дерево, камень или кирпич, чтобы добавить теплоты и уюта. Дополнительные элементы, такие как фотографии, картинки или зелень, могут добавить индивидуальности и украсить пространство.

Большие окна и французские двери позволяют максимально использовать естественное освещение и создать ощущение объединения с природой. Они также обеспечивают прекрасный обзор на окружающий пейзаж.

Угловая каркасная баня - это не только место для релаксации, но и стильное дополнение к ландшафту вашего участка. Она может стать центром внимания и привлекать взгляды гостей своей уникальностью и изяществом.

Независимо от того, хотите ли вы создать роскошную спа-зону или просто идеальное место для отдыха с семьей и друзьями, угловая каркасная баня предлагает все необходимые возможности. Это сочетание функциональности, стиля и комфорта, которое сделает ваш участок поистине уникальным.


2

Баня из бруса 150х150 одноэтажный
3
Баня из бруса 150х150 одноэтажный

Баня 6х6 каркасная под ключ
4
Баня 6х6 каркасная под ключ

Баня хозблок угловая
5
Баня хозблок угловая

6

Угловая баня
7
Угловая баня

8

Баня из клееного бруса угловая
9
Баня из клееного бруса угловая

Угловая баня с мансардой и террасой
10
Угловая баня с мансардой и террасой

11

Каркасник 6х9 одноэтажный
12
Каркасник 6х9 одноэтажный

Баня с хозблоком и верандой 6х6
13
Баня с хозблоком и верандой 6х6

14

15

Угловая баня с мансардой и террасой
16
Угловая баня с мансардой и террасой

Баня с террасой под одной крышей 6х4м
17
Баня с террасой под одной крышей 6х4м

Баня картинки
18
Баня картинки

Баня каркасная угловая проекты
19
Баня каркасная угловая проекты

Баня из клееного бруса 4х10
20
Баня из клееного бруса 4х10

Баня 6х6 из минибруса
21
Баня 6х6 из минибруса

Баня сарай 3х5
22
Баня сарай 3х5

Баня гостевой дом из клееного бруса проекты
23
Баня гостевой дом из клееного бруса проекты

Баня Ласточка проект
24
Баня Ласточка проект

25

Баня с беседкой из БРУ А
26
Баня с беседкой из БРУ А

Баня с верандой под одной крышей проекты 6х6
27
Баня с верандой под одной крышей проекты 6х6

Баня из клееного бруса 6на 9 с террасой
28
Баня из клееного бруса 6на 9 с террасой

Баня 2х3 односкатная
29
Баня 2х3 односкатная

Угловая баня с террасой под одной крышей проекты
30
Угловая баня с террасой под одной крышей проекты

Баня с верандой и барбекю проекты 6х3
31
Баня с верандой и барбекю проекты 6х3

Баня с верандой и барбекю проекты 6х3
32
Баня с верандой и барбекю проекты 6х3

Баня с односкатной крышей проекты 4х6
33
Баня с односкатной крышей проекты 4х6

Баня из клееного бруса 4х10
34
Баня из клееного бруса 4х10

Домик совмещенный с баней
35
Домик совмещенный с баней

Баня с террасой и бассейном
36
Баня с террасой и бассейном

Проект бани с барбекю под одной крышей угловой
37
Проект бани с барбекю под одной крышей угловой

Баня 6х4 плюс терраса
38
Баня 6х4 плюс терраса

Односкатная каркасная баня
39
Односкатная каркасная баня

Летний домик
40
Летний домик

Стильная современная баня
41
Стильная современная баня

Тини Хаус 4х6 проект
42
Тини Хаус 4х6 проект

Баня с дровником под одной крышей проекты
43
Баня с дровником под одной крышей проекты

Баня 3 на 5 с беседкой
44
Баня 3 на 5 с беседкой

Баня гостевой дом из клееного бруса проекты
45
Баня гостевой дом из клееного бруса проекты

Баня с террасой под одной крышей 6х4м
46
Баня с террасой под одной крышей 6х4м

Мобильная баня каркасная 2х4
47
Мобильная баня каркасная 2х4

Дом-баня из клееного бруса проекты
48
Дом-баня из клееного бруса проекты

Дачный домик
49
Дачный домик

Каркасная баня 10х4 проект
50
Каркасная баня 10х4 проект

Баня с односкатной крышей и террасой
51
Баня с односкатной крышей и террасой

Баня с террасой из бруса с двухскатной крышей проект
52
Баня с террасой из бруса с двухскатной крышей проект

Угловой домик
53
Угловой домик

Красивые бани с террасой и барбекю
54
Красивые бани с террасой и барбекю

Гарден Хаус минибрус
55
Гарден Хаус минибрус

Каркасные бани р.ф.
56
Каркасные бани р.ф.

Садовый домик с террасой
57
Садовый домик с террасой

Модульная баня Хотбокс 1
58
Модульная баня Хотбокс 1

Коттеджный комплекс «черника»
59
Коттеджный комплекс «черника»

Угловая баня с террасой под одной крышей проекты
60
Угловая баня с террасой под одной крышей проекты

Баня 6х6 с верандой под одной крышей
61
Баня 6х6 с верандой под одной крышей

Дом-баня из клееного бруса под ключ
62
Дом-баня из клееного бруса под ключ

63

Баня из клееного бруса одноэтажные
64
Баня из клееного бруса одноэтажные

Маленький одноэтажный дом с баней
65
Маленький одноэтажный дом с баней

Хозблок минибрус 2,3х3
66
Хозблок минибрус 2,3х3

67

Баня с хозблоком и верандой 6х6
68
Баня с хозблоком и верандой 6х6

Баня с верандой и барбекю проекты 6х3
69
Баня с верандой и барбекю проекты 6х3

Хозблок 6м*2,3м (№6013)
70
Хозблок 6м*2,3м (№6013)

Баня 6х10 с террасой
71
Баня 6х10 с террасой

Баня 3х4 с террасой 2х3
72
Баня 3х4 с террасой 2х3

Баня бочка Викинг под ключ
73
Баня бочка Викинг под ключ

Современная баня
74
Современная баня

Баня с террасой под одной крышей 6х4м
75
Баня с террасой под одной крышей 6х4м

Баня с беседкой
76
Баня с беседкой

Угловой летний домик
77
Угловой летний домик

Баня с беседкой под односкатной крышей
78
Баня с беседкой под односкатной крышей

Баня с террасой под одной крышей 6х4м
79
Баня с террасой под одной крышей 6х4м

Гостевой домик проекты
80
Гостевой домик проекты
Больше дизайн идей:
Комментарии (0)
Кликните на изображение чтобы обновить код, если он неразборчив